Neu errichtete Wohnung im 2. Stock 1220 Wien-Essling - MyReal Immobilien

Neu errichtete Wohnung im 2. Stock 1220 Wien-Essling






Ort: 1220 Wien

Kaufpreis: € 260.000




Objekt:

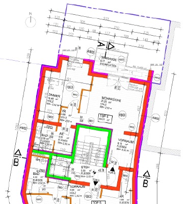
Zum Verkauf steht diese ca. 49,61m² große NO seitig gelegene Wohnung im 2. Lift-Stock im 22. Bezirk.
Diese Wohnung verfügt über eine Terrasse mit 6,77m².

Es handelt sich um ein Wohnhaus mit 8 Einheiten.
Die Wohnungen werden je über eine Zentralle Wärmepumpe Beheizt sowie über den Fußboden gekühlt

Der Boden wurde mit Fertigklebeparkett Landhausdiele Eiche belegt und mit Sockelleisten versehen.

Die Fenster sind wärmegedämmte PVC-Isolierglasfenster bzw. Terrassen-/Balkontüren mit 3-fach-Isolierverglasung.
Aluminiumsohlbank außen (pulverbeschichtet) und Innenfensterbank mit weißer
Kunststoffoberfläche, gerundeter Vorderkante und beschichteten Endstücken Vorbaukasten für Sonnenschutz-Außenbeschattung.

Außenrollo: Rollo mit El. Motor und Schalter, in dem Vorbaukasten eingebaut.
Dachfenster / Innenbeschattung.

Als Eingangstür wurde eine KASIM 1- Flügelige Stahl- Sicherheitstüre mit 8 Fach Verriegelung montiert.

Die Heizung/Klima erfolgt durch eine Wärmepumpe Hersteller REMKO für Raumheizung und Warmwasseraufbereitung mit ausrechend dimensioniertem Zentralheißwasserboiler, Warmwasser mit Zirkulationsleitung; elektronische witterungsabhängige Steuerung der gesamten Haustechnikanlage; Fußbodenheizung je Wohneinheit über analoges Raumthermostat im Wohnzimmer gesteuert, Wohnungsweise Heizungsverteilung mit Absperreinrichtungen für Heizungsvor- und –Rücklauf.
Die Kühlung der Wohneinheiten wird durch die Wärmepumpe betrieben Kühlung über die Fußbodenheizung.







Sonstiges:

***ACHTUNG*** Unbedingt beachten !!
Aufgrund der Vereinbarung mit den Immobilieneigentümern sind wir dazu verpflichtet die vollständigen Adressdaten eines Interessenten zu hinterlegen, bevor wir detaillierte Objektinformationen weitergeben dürfen.
Bitte teilen Sie uns daher Ihren Namen, Ihre derzeitige Anschrift, E-Mailadresse und eine Telefonnummer mit.
Wir werden Ihnen die gewünschten Informationen dann umgehend zukommen lassen.
Sollten wir oben angeführte Informationen nicht erhalten, können wir Ihre Anfrage leider nicht bearbeiten.

**Unsere Kompetenz ist Ihr Vorteil**
Wir bieten Ihnen ein Rundumservice bis hin zur Vertragserstellung, Treuhandabwicklung und natürlich Grundbuchseintragung.
Sie ersparen sich viele Wege und finden bei uns alles unter einem Dach.

Angegebene Daten und Maße wurden uns vom Eigentümer bzw. aus den Branchenüblichen Datenquellen entnommen.
Wir übernehmen keinerlei Haftung für nicht von uns vermessenen Flächen, bzw. Daten welche durch Unterlagen belegt werden können.
Es gelten ausschließlich die Angaben, welche in einem Kauf- Mietvertrag angegeben werden.


Objektnummer: 4774



Eckdaten:

Objektart: 

Etagenwohnung

Zimmer/Räume: 

2

Wohnfläche in m² ca.: 

49,61

Stockwerk 

2. Stock

Anzahl der Stockwerke 

3

Zustand: 

Erstbezug

Bezugstermin: 

sofort

Baujahr: 

2024

Personenaufzug: 

Ja

Balkon/Terrasse vorhanden: 

Ja

Seniorengerechtes Wohnen: 

Nein

Haustiere erlaubt: 

Ja

Heizungsart: 

Fußbodenheizung

Befeuerung/Energieträger 

Wärmepumpe

Barrierefrei: 

Ja

Heizwärmebedarf: 

32,40

Heizwärmebedarf Klasse: 

B

Gesamtenergieeffizienz: 

0,69

Gesamtenergieeffizienz-KL: 

A+