2 geschoßiges Geschäftslokal in Berndorf - MyReal Immobilien

2 geschoßiges Geschäftslokal in Berndorf






Ort: 2560 Berndorf

Kaufpreis: € 650.000




Objekt:

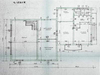
1967 errichtetes Geschäftslokal auf zwei Etagen - Nutzung sowohl im Handel als auch als Dienstleistungsbetrieb.Das Erdgeschoß mit ca. 147qm teilt sich in die Verkaufs/Ausstellungsfläche mit 86qm, einem Rezeptions/Thekenbereich mit ca 22qm, zwei Räumen mit je 8,25qm und einem Flur mit ca 6qm, 2 Duschbereichen, 2 getrennten WCs, einem weiteren Vorraum mit ca 6qm und einem Abstell oderLagerraum mit ca 17qm.
In das 64 qm große Obergeschoß kommt man über eine Treppe vom Verkaufs/Ausstellungsraum. Zu diesem Geschäftslokal gehört auch ein Außenbereich mit ca 150-200qm, welcher als Außenlager oder Präsentationsfläche verwendet werden kann. Ein Keller mit ca 90qm ist ebenfalls als Lagerfläche geeignet.Im Außenbereich befindet sich ein Öltank für die Ölheizung.
Die Böden in diesem Objekt sind teilweise mit Fliesen, PVC und ohne Bodenbelägen im Lagerraum (Press-Spanböden) ausgestattet. Die vorhandenen Einrichtungsgegenstände, wie Bar/Theke, können unentgeltlich genutzt werden.Ein Umbau bzw Adaptierung der Einzelplatzheizung auf eine Zentralheizung mit Gasbetrieb wäre möglich. Der Kaufpreis beträgt VB € 650.000,-

Lage:

Ausserhalb des Ortskernes aber noch im Ortsverbund. In nur wenigen Gehminuten sind sowohl Einkaufsmöglichkeite, als auch Arzt, Apotheke, Gärtnerei, Banken und Post zu erreichen. Die öffentliche Verkehrsanbindung mit Bus und Bahn sist in 5 Gehminuten zu erreichen. Die Anbindung an die A 2 ist ca 10km und die Kurstadt Baden 13km entfernt.




Sonstiges:

***ACHTUNG*** Unbedingt beachten !!
Aufgrund der Vereinbarung mit den Immobilieneigentümern sind wir dazu verpflichtet die vollständigen Adressdaten eines Interessenten zu hinterlegen, bevor wir detaillierte Objektinformationen weitergeben dürfen.
Bitte teilen Sie uns daher Ihren Namen, Ihre derzeitige Anschrift, E-Mailadresse und eine Telefonnummer mit.
Wir werden Ihnen die gewünschten Informationen dann umgehend zukommen lassen.
Sollten wir oben angeführte Informationen nicht erhalten, können wir Ihre Anfrage leider nicht bearbeiten.
Der Auftraggeber wurde über die Informationspflicht betreffend Energieausweiskennzahl informiert. Der Energieausweis wir nachgerreicht.
**Unsere Kompetenz ist Ihr Vorteil**
Wir bieten Ihnen ein Rundumservice bis hin zur Vertragserstellung, Treuhandabwicklung und natürlich Grundbuchseintragung.
Sie ersparen sich viele Wege und finden bei uns alles unter einem Dach.
Angegebene Daten und Maße wurden uns vom Eigentümer bzw. aus den Branchenüblichen Datenquellen entnommen.
Wir übernehmen keinerlei Haftung für nicht von uns vermessenen Flächen, bzw. Daten welche durch Unterlagen belegt werden können.
Es gelten ausschließlich die Angaben, welche in einem Kauf- Mietvertrag angegeben werden.


Objektnummer: 4591



Eckdaten:

Objektart: 

Einfamilienhaus

Zimmer/Räume: 

8

Wohnfläche in m² ca.: 

294,10

Grundstücksfläche m² ca.: 

434

Nutzfläche 

446,80

Anzahl der Stockwerke 

2

Bezugstermin: 

ab sofort

Zustand: 

renovierungsbedürftig

Baujahr: 

1968

Bodenbelag: 

Fliesen

Freifläche in m² ca.: 

150

Zum Bus/UBahn (in Min.): 

5

Zum Flughafen (in Min.): 

45

Zum Hauptbahnhof (in Min.): 

5

Heizungsart: 

Zentralheizung

Befeuerung/Energieträger 

Öl

Energieeffizienzklasse: 

F

Keller: 

Ja