Doppelhaushälfte in Ruhelage - MyReal Immobilien

Doppelhaushälfte in Ruhelage






Ort: 2752 Steinabrückl

Kaufpreis: € 435.000




Objekt:

Zum Vorverkauf steht eine moderne, sonnige Doppelhaushälfte in Ruhelage in Planung.
Das Grundstück ist nach Süden ausgerichtet und bietet somit optimale Sonnenlage.
Diese Doppelhaushälfte befindet sich in einem Verbund und besitzt daher eine exclusive private Zufahrt. Am Eigengrund befinden sich auch zwei KFZ-Parkplätze.
Das Haus wird in modernster Bauweise errichtet und verfügt natürlich über aktuelle, zeitgerechte Materialien und Installationen.
Beheizt wird das Haus durch eine Fußbodenheizung mit Luftwärmepumpe.
Der angegebene Kaufpreis beinhaltet eine belagsfertige Übergabe. Sollte eine schlüsselfertige Übergabe gewünscht sein, ist dies mit dem Bauträger zu vereinbaren.
Das Gebäude selbst gliedert sich in:

EG
Eingangsbereich mit Vorraum, Garderobe und Stiegenhaus
einem separaten Gäste WC
einem Technikraum
einen Abstellraum
eine ca. 38m² große Wohnküche mit übergroßen Glasbereich/Tür auf die Terrasse

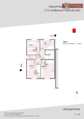
OG
Hier befinden sich ein Flur
Abstellreum
ein großes Badezimmer/WC
ein Hauptschlafzimmer
und zwei Kinder/Gästezimmer

vom Flur gelangt man auch auf den Dachboden, welcher größzügig Platz bietet.

Die Planung ist auf ein helles Wohnkonzept ausgelegt, welches jedoch auch genügend Schatten bietet, um zu starke Sonneneinstrahlung besonders im Sommer unterbindet.

Lage:

Wöllersdorf-Steinabrückl ist eine Marktgemeinde im Bezirk Wiener Neustadt-Land in Niederösterreich mit ca. 4810 Einwohnern

Straße: Die Gemeinde wird von der Süd Autobahn (A2) durchquert, die von Wien bis zur Staatsgrenze zu Italien bei Arnoldstein führt und in Wöllersdorf eine Anschlussstelle ("Wöllersdorf/Wr. Neustadt-Nord") hat. Durch das Ortsgebiet von Wöllersdorf und Feuerwerksanstalt verläuft die Gutensteiner Straße (B21), die von Wiener Neustadt nach Mariazell führt. Ein Seitenast (B21a) verläuft am Rande des Ortsgebiets von Steinbrückl nach Felixdorf, wo sie in die Wiener Neustädter Straße (B17) einmündet.

Eisenbahn: Mit der Gutensteiner Bahn ist die Gemeinde seit 1. September 1877 durch die Eisenbahn erschlossen.





Sonstiges:

***ACHTUNG*** Unbedingt beachten !!
Aufgrund der Vereinbarung mit den Immobilieneigentümern sind wir dazu verpflichtet die vollständigen Adressdaten eines Interessenten zu hinterlegen, bevor wir detaillierte Objektinformationen weitergeben dürfen.
Bitte teilen Sie uns daher Ihren Namen, Ihre derzeitige Anschrift, E-Mailadresse und eine Telefonnummer mit.
Wir werden Ihnen die gewünschten Informationen dann umgehend zukommen lassen.
Sollten wir oben angeführte Informationen nicht erhalten, können wir Ihre Anfrage leider nicht bearbeiten.

Der Auftraggeber wurde über die Informationspflicht betreffend Energieausweiskennzahl informiert. Der Energieausweis wir nachgerreicht.

**Unsere Kompetenz ist Ihr Vorteil**
Wir bieten Ihnen ein Rundumservice bis hin zur Vertragserstellung, Treuhandabwicklung und natürlich Grundbuchseintragung.
Sie ersparen sich viele Wege und finden bei uns alles unter einem Dach.

Angegebene Daten und Maße wurden uns vom Eigentümer bzw. aus den Branchenüblichen Datenquellen entnommen.
Wir übernehmen keinerlei Haftung für nicht von uns vermessenen Flächen, bzw. Daten welche durch Unterlagen belegt werden können.
Es gelten ausschließlich die Angaben, welche in einem Kauf- Mietvertrag angegeben werden.
Der Makler steht mit dem vermittelnden Dritten in einem wirtschaftlichen Naheverhältnis.


Objektnummer: 4564



Eckdaten:

Objektart: 

Doppelhaushälfte

Zimmer/Räume: 

4

Wohnfläche in m² ca.: 

113

Grundstücksfläche m² ca.: 

256

Anzahl der Stockwerke 

2

Zustand: 

Erstbezug

Baujahr: 

2023

Balkon/Terrasse vorhanden: 

Ja

Heizungsart: 

Fußbodenheizung

Befeuerung/Energieträger 

Wärmepumpe

Bauphase: 

In Planung

Gäste-WC: 

Ja