Wunderschönes Zweifamilien Jugendstilhaus in Bremen - MyReal Immobilien

Wunderschönes Zweifamilien Jugendstilhaus in Bremen






Ort: DEU-28217 Bremen

Kaufpreis: € 449.000




Objekt:

Ein sehr begehrenswertes Jugendstilhaus in sehr gesuchter lage in Bremen - Walle.
Neben der neu entstandenen Übersee - City gelegen, wurde der Stadteil Walle in den letzten Jahren zu einer In- Wohngegend.
Hier zu Leben ist "Kult" pure...
Das Haus hat viele sehr liebenswerte Details aus dem Jugendstil.

Das Haus verfügt über zwei getrennte Wohnungen und dem darunter liegenden Keller, der zu Wohnzwecken ausgebaut werden kann.
Dieser hat neben dem eigentlichen Kellerraum eine Küche, Abstellraum, Flur und WC, mit zusammen ca. 70 m² Fläche.
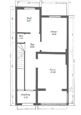
Im 1. Stock liegen zwei Wohnräume, ein Bad, Abstellraum; allles über einen Flur erreichbar und zusammen mit ca. 57 m²
Diese 2 Etagen bilden eine abgeschlossene Wohnung mit ca. 127 m²
Diese Wohnung ist bereits frei.

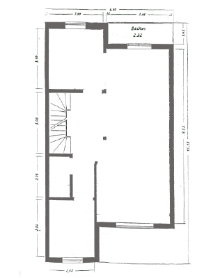
Im 1. Obergeschoss liegen 3 Zimmer, ein Bad, Abstellraum und ein Balkon, alles zusammen mit ca. 60 m² Wohnfläche.
Alles wiederum über den Flur erreichbar.
Im 2. Obergeschoss sind 2 Zimmer. Bad, Abstellraum und ein Balkon, alle durch den Flur miteinander verbunden und hat ca. 63 m².
Im Dachgeschoss befindet sich noch ein Studio mit ca. 43 m² Grundfläche und somit ca. 16 m² Normwohnfläche.
Diese Wohnung hat insgesamt ca. 166 m² und wird von der Eigentümerin selbst bewohnt und wird nach Absprache frei.

Der Garten ist mit 4 Meter hohen Kamelien bepflanzt.

Die Gesamtwohnfläche beträgt ca. 295 m² und bietet damit viel Platz zum Leben, ein ideales Mehrgenerationenhaus.

Lage:

In einer baumbestandenen Seitenstrasse gelegen, bietet dieses Stilhaus Leben in Ruhe und viel frischer Luft.
Der Bahnhof Bremen - Walle ist zu Fuß erreichbar, ebenso die nächsten Haltestellen von zwei Strassenbahnlinien
Parkplätzer sind entlang der Strasse reichlich vorhanden.
Die nächste Autobahnauffart ist nur wenige Hundert Meter entfernt.

Ausstattung:

Die Raumhöhen betragen im Kellergeschoss wohnliche 2,8 Meter.
Das Erdgeschoß har grandiose 3,5 Meter Raumhöhe, der 1. Stock 3,3 Meter, das 2. Obergeschoß 3,0 Meter und das Dachgeschoss mit dem Studio eine Raumhöhe mittig von 2 Meter.

Es gibt eine Gas - Etagenheitzung, die Fenster sind aus Kunststoff und isolierverglast.

Das Haus ist in einem guten Zustand.
Alle Fenster auf der Strassenseite sind neu.
Die Fassade vorn wurde vor ca. 10 Jahren erneuert.



Sonstiges:

***ACHTUNG*** Unbedingt beachten !!
Aufgrund der Vereinbarung mit den Immobilieneigentümern sind wir dazu verpflichtet die vollständigen Adressdaten eines Interessenten zu hinterlegen, bevor wir detaillierte Objektinformationen weitergeben dürfen.
Bitte teilen Sie uns daher Ihren Namen, Ihre derzeitige Anschrift, E-Mailadresse und eine Telefonnummer mit.
Wir werden Ihnen die gewünschten Informationen dann umgehend zukommen lassen.
Sollten wir oben angeführte Informationen nicht erhalten, können wir Ihre Anfrage leider nicht bearbeiten.

Der Auftraggeber wurde über die Informationspflicht betreffend Energieausweiskennzahl informiert. Der Energieausweis wir nachgerreicht.

**Unsere Kompetenz ist Ihr Vorteil**
Wir bieten Ihnen ein Rundumservice bis hin zur Vertragserstellung, Treuhandabwicklung und natürlich Grundbuchseintragung.
Sie ersparen sich viele Wege und finden bei uns alles unter einem Dach.

Angegebene Daten und Maße wurden uns vom Eigentümer bzw. aus den Branchenüblichen Datenquellen entnommen.
Wir übernehmen keinerlei Haftung für nicht von uns vermessenen Flächen, bzw. Daten welche durch Unterlagen belegt werden können.
Es gelten ausschließlich die Angaben, welche in einem Kauf- Mietvertrag angegeben werden.


Objektnummer: 4528



Eckdaten:

Objektart: 

Mehrfamilienhaus

Zimmer/Räume: 

9

Wohnfläche in m² ca.: 

255

Grundstücksfläche m² ca.: 

178

Nutzfläche 

308,4

Anzahl der Stockwerke 

4

Alt-/Neubau: 

Altbau

Bezugstermin: 

nach Absprache

Baujahr: 

1906

Balkon/Terrasse vorhanden: 

Ja

Heizungsart: 

Etagenheizung

Einbauküche vorhanden: 

Ja

Befeuerung/Energieträger 

Gas

Modernisierung/Sanierung: 

ca. 1980

Ausstattung: 

Gehoben

Gäste-WC: 

Ja

Heizwärmebedarf: 

166,20

Heizwärmebedarf Klasse: 

F

Gesamtenergieeffizienz: 

183,90